ЖК Радужный
Хватит дышать смогом и тесниться в старых домах советской постройки... Современное жилье в черте города несомненно привлечет молодые семьи с детьми, которым понравятся чистые ухоженные подъезды, новенькие детские площадки и аккуратные дворы с лужайками и скамейками для отдыха. Новый формат жилья предполагает счастливое детство для твоего ребенка, место для семейного досуга и зеленое пространство для прогулок на свежем воздухе.
Расположение
Характеристики ЖК
| ||||||||||||||||
| ||||||||||||||||
|
Ход строительства
Застройщик
Задать вопрос Застройщику
Описание
Описание
жилого комплекса:
Компания
«Мегаинвестстрой» ведет строительство второй очереди жилого комплекса
«Радужный». Три десятиэтажных дома возводятся по монолитно-каркасной
технологии. На крыше комплекса планируется установить котельную.
Квартиры в
доме расположены по 6 на этаже. Подавляющую часть жилья в доме составляют
небольшие однокомнатные квартиры площадью 40-41 м2, хотя
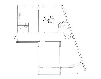
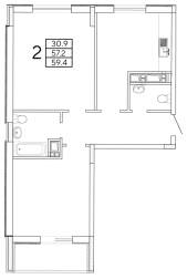
предусмотрены в доме и двухкомнатные квартиры в 56-80 м2, и
трехкомнатные – 80-90 м2. Квартиры правильных прямоугольных форм,
это позволит хорошо распланировать пространство и использовать жилплощадь
максимально рационально.
Строящийся в
десяти минутах ходьбы от станции метро «Пролетарская», комплекс
«Радужный» практически окружен объектами инфраструктуры Индустриального
района. Поблизости – и общеобразовательные школы, и медучреждения, и торговые
центры. Остановки общественного транспорта также расположены в пешей
доступности.
Жилой комплекс «Радужный»
содержит необходимое для комфортной жизни:
Расположение
- 6 минут к
школе № 85;
- 9 минут к
продуктовому магазину;
- 9 минут к
супермаркету «Класс-5»;
- 10 минут
езды к станции метро «Индустриальная»;
- 15 минут
езды к Международному аэропорту «Харьков».
Концепция
- класс
«эконом-плюс»;
- 3 дома в
составе комплекса;
- 10 этажей;
-
монолитно-каркасное строительство;
- яркое
оформление фасадов.
Новостройки рядом
А что вы думаете об этом комплексе?
- Новостройки Украины
- Харьков
- Индустриальный район
- ЖК Радужный
