ЖК BOSTON Creative House
Простіше, зручніше, ближче - забудовник взяв такий девіз основою проектування і будівництва модерновоъ новобудови. Тут ти зрозумієш, що таке нова якість життя. Головною особливістю цього житлового комплексу стане наявність всього необхідного під рукою. Завдяки цьому вирішення побутових питань буде займати мінімум часу. Ще в квартирах обладнають систему «розумний будинок», а у дворі облаштують пишну паркову зону.
Продаж квартир від забудовника
Варіанти придбання
Розташування
Характеристики ЖК
| ||||||||||||||||||
| ||||||||||||||||||
|
Аерообліт ЖК BOSTON Creative House
Хід будівництва
Забудовник
Запитати у Забудовника
Інформація
Про комплекс апартаментів
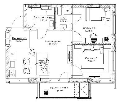
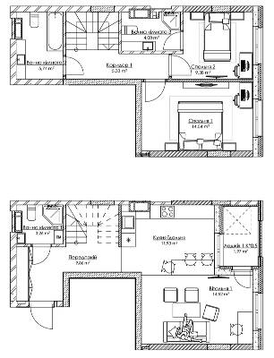
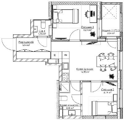
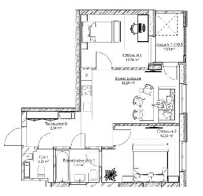
BOSTON Creative House, що реалізує компанія SAGA Development, запланований на території 1,4 га. Згідно з проектом, комплекс представлять новобудови, концептуально об'єднані не тільки оригінальною архітектурної, а й конструктивною особливістю: два 25-поверхових будинки з апартаментами, по периметру прямокутника, «оточить» 5-поверхова будівля з комерційною нерухомістю. У житловій частині, яка запланована з 6-го поверху кожного будинку, запроектовано 684 апартаменти:
- 396 – 1-кімнатні планування;
- 278 – 2-кімнатні;
- 10 – 3-кімнатні.
Останні будуть розташовуватися на двох рівнях поверхів 24-25. Площа апартаментів варіює від 36,8 до 110,4 квадратних метрів.
Щоб довідатися про ціни, купити апартаменти або торгове приміщення – звертайтеся до відділу продажу.
Розташування
Комплекс апартаментів BOSTON Creative House з'явиться в Оболонському районі Києва, за адресою: пр-т Степана Бандери, 14б. Найближча станція метрополітену «Почайна» знаходиться в 900 м.
Інфраструктура
У 5-поверховому будинку BOSTON Creative House заплановані нежитлові приміщення, призначені для закладів громадського призначення, в тому числі коворкінг, конференц-хол і офісний центр. 492 кв. м передбачено для розміщення дитячого садка. Для автотранспорту створять 280 машино-місць в підземному однорівневій паркінгу. На закритій внутрішньої території обіцяють облаштувати паркову локацію, де резиденти комплексу зможуть насолоджуватися прогулянками, відпочинком і активним дозвіллям. У мікрорайоні, де зведуть будинки, добре розвинена торгово-розважальна інфраструктура. В окрузі, в пішому доступі:
- речовий і книжковий ринки;
- супермаркет «Ашан»;
- ТЦ «Макрос», «Територія мінімальних цін», Plaza Sport Outlet, «Блокбастер»;
- множинні заклади харчування та інше.
Державні, освітні та медичні установи розташовані в масиві Оболонь, дорога до крайньої точки якого займе не більше 15 хвилин на автомобілі.
Матеріали і технології
Відомо, що забудовник зведе комплекс за монолітно-каркасною технологією. Стіни виконають з газоблоку і керамоблоку, з подальшим утепленням мінеральною ватою.
Архітектура і зовнішній вигляд
ЖК «БОСТОН Креатив Хаус», згідно візуалізацій, представлять сучасні будинки правильних форм. Оригінальності додадуть розташовані в зигзагоподібный формі балкони, що створить ілюзію руху «хвиль». В оздобленні фасадів будівель будуть обрані матеріали білого або світло-сталевого кольорів.
Переваги
Наявність об'єктів власної інфраструктури.
Недоліки
Менш ніж в 500 м з двох сторін комплексу апартаментів розташовані «гучні» магістралі – шосе зі щільним трафіком і дорога із залізничним сполученням.
Цей ЖК часто шукають за такими назвами: жк бостон креатив хаус, жк бостон
З цим ЖК читають
А що ви думаєте про цей комплекс?
- Новобудови України
- Київ
- Петрівка
- ЖК BOSTON Creative House
