ЖК Greenville Park
Комплекс призначений для сучасних столичних жителів, які цінують час і намагаються знайти баланс між роботою і відпочинком. Завдяки вдалому плануванню та облаштуванню ЖК, його мешканці зможуть розраховувати на високий рівень комфорту. Кращі заклади для відпочинку будуть відкриті на даху з розкішним виглядом на столицю. Діловим людям сподобається бізнес-зона, де можна проводити офіційні зустрічі з колегами, клієнтами та партнерами по роботі. Крім того, забудовник передбачив багато паркомісць, кількість яких перевищує кількість квартир.
Продаж квартир від забудовника
Варіанти придбання
Розташування
Характеристики ЖК
| ||||||||||||||||||||||||||||
| ||||||||||||||||||||||||||||
|
Хід будівництва
Забудовник
Запитати у Забудовника
Інформація
Інформація про житловий комплекс:
Ще одним столичним комплексом, що втілює концепцію «місто в місті», стане ЖК Greenville Park від компанії «НЕСТ». Адреса новобудови: м. Київ, вул. Пимоненка, 21. Незважаючи на малу кількість будинків в комплексі, а їх тут лише два, на прибудинковій території буде зосереджена розвинена інфраструктура, що дозволяє вирішувати побутові питання, без зайвої витрати часу. Оформлення будинків буде здійснюватися відповідно до авторського проекту, з сертифікованих матеріалів європейського зразка. Так, наприклад, для додання комплексу урбаністичного зовнішнього вигляду, з-за кордону була спеціально привезена фасадна плитка з ефектом вологи.
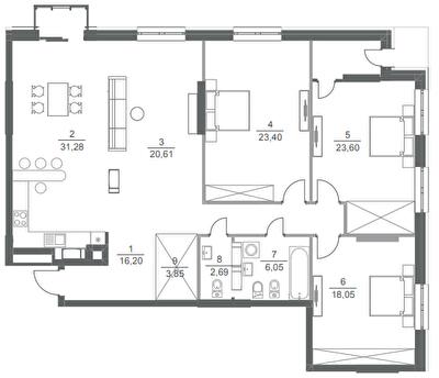
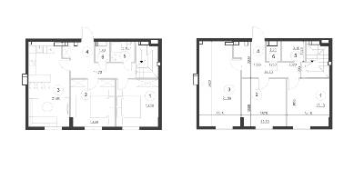
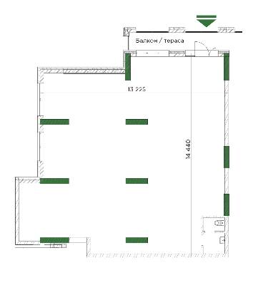
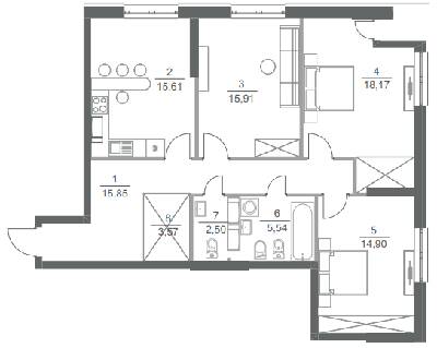
Згідно з проектом, в «Грінвілль Парку» передбачено 664 квартири, представлених в 54 варіантах планувань. Завдяки такій різноманітності, навіть найвибагливіші інвестори зможуть підібрати для себе оптимальний варіант. Щоб купити квартиру в ЖК або дізнатися про ціни за квадратний метр, звертайтеся до відділу продажу.
Як згадувалося вище, інфраструктура комплексу буде організована «з розмахом», що заслуговує на окрему увагу. На закритій території передбачено все, що може знадобитися для повноцінного життя: шестирівневий паркінг, магазини, фітнес-центр, дитячі садки, школа, спортивні та ігрові майданчики, лаунж-зона на даху, власна бізнес-зона і обслуговуюча сервісна компанія, що зробить перебування в комплексі максимально комфортним.
Житловий комплекс Greenville Park наділений такими характеристиками:
Розташування
- 3 хвилини до лікарні;
- 4 хвилини до скверу Гейдара Алієва;
- 12 хвилин до кінотеатру «Київська Русь»;
- 16 хвилин до станції метро «Лук'янівська»;
- 20 хвилин їзди до центру міста.
Концепція
- бізнес-клас;
- комплекс з 2 будинків;
- 26-поверхові новобудови;
- монолітно-каркасне будівництво;
- формат забудови «місто в місті».
Квартири
- однокімнатні – від 48,25 кв.м;
- двокімнатні – від 69,84 кв.м;
- трикімнатні – від 100,49 кв.м;
- оздоблення «під ремонт»;
- стандартна комплектація.
Сервіс
- закрита територія;
- підземний і гостьовий паркінги;
- дитячі та спортивні майданчики;
- дитячі садки і школа;
- лаунж-зона на даху.
Цей ЖК часто шукають за такими назвами: жк грінвіль парк, жк гринвілль парк
А що ви думаєте про цей комплекс?
- Новобудови України
- Київ
- Шевченківський район
- Шевченківський (центр)
- ЖК Greenville Park
