ЖК Липинка
Как заявляет застройщик, жилой комплекс отличается сочетанием городского комфорта и уюта, присущего неторопливой жизни за городом. Удаленность автомагистралей, малая этажность (дома в 5 и 6 этажей), просторные участки дворов, закрытая охраняемая территория с круглосуточным видеонаблюдением и собственный паркинг – безусловные плюсы комплекса. В
окружении новостроя – школа, детский сад, аптеки, фитнес-центры. На территории
– два продуктовых магазина, кафе, кофейня, кондитерская. В отделе продаж покупателям предлагаются одно-, двух- и трехкомнатные квартиры различных планировок.
Расположение
Характеристики ЖК
| ||||||||||||||||||||
| ||||||||||||||||||||
|
Аэрооблёт ЖК Липинка
Ход строительства
Застройщик
Описание
Описание жилого комплекса:
«Липинка» – новый микрорайон на Виноградаре с нестандартными архитектурными решениями, разработанными Stolitsa Group и основанными на актуальном тренде жилья в эко-стиле. Адрес комплекса: г. Киев, ул. Замковецкая, 102, 102а, 102б, 104, 104а, 106, 106а, 106б, ул. Кавалеридзе, 1, 3, 5, 7, 9, 11, ул. Данченко, 2, 4, 6, 8, 10. К ближайшей станции метро «Сырец» можно доехать за 15 минут на машине.
На территории новостройки есть все, что необходимо для комфортной жизни: большой супермаркет, детские площадки, велодорожки, зеленые насаждения и даже большое футбольное поле. «Липинка» – новый и нетипичный для Киева малоэтажный жилой микрорайон. Этот комплекс бизнес-класса на улице Замковецкой поразил киевлян нестандартным внешним видом, а первых его жителей – планировками квартир с навесными балконами, закрытыми просторными дворами и большими зелеными насаждениями возле домов. На территории посадили много деревьев, которые в перспективе должны существенно ее озеленить.
Отметим, что удачное использование рельефа местности дало возможность гармонично вписать микрорайон в существующий ландшафт города. У каждого жителя первых этажей клубных домов ЖК «Липинка», есть возможность входа в квартиру прямо со двора, непосредственно с открытой террасы. Архитекторы продумали и концепцию мест отдыха для жильцов: с расчетом на каждые 2-3 дома есть детская и спортивная площадка, специальные места для выгула домашних любимцев, одно футбольное поле под открытым небом с натуральным газоном. Дорожки микрорайона в идеальном состоянии и подойдут как для велосипедных, так и роликовых прогулок. Инфраструктура микрорайона «Липинка» постоянно развивается. На прилегающей к нему территории открыли супермаркет NOVUS. В перспективе – дорога, соединяющая проспект Правды и «Липинку».
Жилой комплекс «Липинка» – новый район с малоэтажными постройками на Виноградаре:
Расположение
- 1 минута к продуктовому магазину;
- 12 минут к школе № 19;
- 16 минут к Киевской областной клинической больнице;
- 6 минут езды к Березовому гаю;
- 11 минут езды к станции метро «Сырец».
Концепция
- эко-постройка;
- комфорт-класс;
- 42 дома в рамках квартала;
- кирпичная технология строительства;
- малоэтажная застройка.
Квартиры
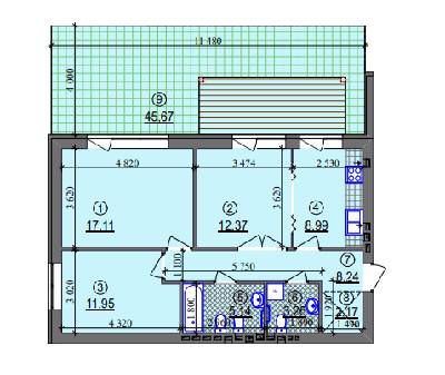
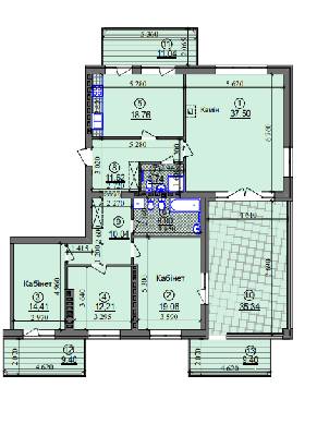
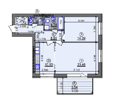
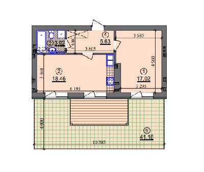
- однокомнатные – от 44,27 квадратных метра;
- двухкомнатные – от 52,11 кв.м;
- трехкомнатные – от 86,93 кв.м;
- высота потолков – 2,75 м;
- отделка «под ремонт».
Сервис
- закрытая территория;
- подземный паркинг;
- детские и спортивные площадки;
- футбольное поле;
- места для выгула собак;
- круглосуточная охрана.
С этим ЖК читают
А что вы думаете об этом комплексе?
- Новостройки Украины
- Киев
- Подольский район
- Мостицкий
- ЖК Липинка
