ЖК Status Grad

Расположение
Характеристики ЖК
| 
 | ||||||||||||||||||
| 
 | ||||||||||||||||||
| 
 | 
Застройщик
Описание
Описание
жилого комплекса:
Жилой комплекс Status Grad от застройщика Status Group находится в г. Киев, на улице Завальная, 10, в районе станции метро «Осокорки». За последние двадцать лет инфраструктура района значительно расширилась. На сегодняшний день в пределах 500-600 метров от комплекса находятся дошкольные и школьные учебные заведения, медучреждения и ТРЦ «Аркадия». На расстоянии 130-200 метров: фитнес-клуб Sport Life, супермаркет Novus и Макдональдс. До рынка «Евробазар» – 500 метров, до гипермаркетов «Эпицентр К» и «Метро» около полутора километра.
Кроме того,
поблизости озера, зеленые зоны и песчаные пляжи Днепра, а также крейсерский
Яхт-клуб, основанный в конце 1960-х годов. Расстояние до яхт-клуба – 1500
метров, до Днепра – 1200 метров, до причала «Осокорки» – 1500 метров.
Жилой комплекс
построен по современным европейским стандартам и расположен так, чтобы его
жильцам было максимально удобно добираться в аэропорт, центр столицы или же на
кольцевую дорогу. Недалеко от ЖК «Статус Град» проходят маршрутные такси, автобусы,
соединяющие Правый и Левый берега. Расстояние до ближайшей станции метро
«Осокорки» составляет всего 100 метров. 
 
Жилой
комплекс Status Grad содержит все необходимое для комфортной жизни:
 
Расположение
- 5 минут к
станции метро «Осокорки»;
- 7 минут к
супермаркету «Новус»;
- 11 минут к
ТЦ «Аркадия»;
- 5 минут езды
к ТЦ «Алладин»;
- 5 минут езды
к ТЦ «Эпицентр К».
 
Концепция
-
бизнес-класс;
-
трехсекционный новострой;
- 10/17/25
этажей;
-
монолитно-каркасное строительство;
- современное
оформление фасадов.
 
Квартиры
-
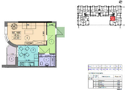
однокомнатные – от 42,2 кв.м;
-
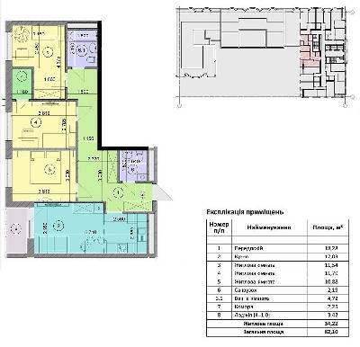
двухкомнатные – от 74,27 кв.м;
-
трехкомнатные – от 82,1 кв.м;
- высота
потолков – 3 м; 
- стандартная
комплектация.
 
Сервис
- гостевой
паркинг;
- коммерческие
помещение на первом этаже;
- детская
площадка;
- места для
отдыха. 
Этот ЖК часто ищут по таким названиям: жк статус град
А что вы думаете об этом комплексе?

- Новостройки Украины
- Киев
- Дарницкий район
- Осокорки
- ЖК Status Grad




