ЖК Варшавский Микрорайон
Глобальная застройка микрорайона с собственной развитой инфраструктурой и единой архитектурной концепцией – то, что сделает проживание в комплексе максимально комфортным. Здесь каждый найдет для себя уютную квартиру среди представленного разнообразия планировок. В числе преимуществ нового микрорайона – пешая доступность к озеру и лесной зоне Пущи-Водицы, а также благоприятная роза ветров. Приятным бонусом станет наличие по соседству торгово-развлекательного центра RETROVILLE.
Расположение
Характеристики ЖК
| ||||||||||||||||||||||
| ||||||||||||||||||||||
|
Аэрооблёт ЖК Варшавский Микрорайон
Ход строительства
Застройщик
Описание
Описание жилого комплекса:
Новым проектом девелоперской компании Stolitsa Group стал современный и комфортный жилой комплекс — Варшавский Микрорайон. Возводящийся на пересечении улицы Маршала Гречко и проспекта Правды, микрорайон будет буквально окружен всеми необходимыми объектами социальной и торгово-развлекательной инфраструктур. Рядом с микрорайоном расположены супермаркеты «Сильпо» и «АТБ», рынок, детская поликлиника, международная школа «Меридиан» и общеобразовательные школы № 243 и 242. Также, неподалеку находятся озеро Синее и живописный лес.
Помимо этого, в нескольких шагах от Варшавского Микрорайона находится современный ТРЦ Retroville. Здесь предусмотрены кинотеатр, каток, бассейн, супермаркет NOVUS и больше двух сотен бутиков. Также на территории Варшавского Микрорайона будет свой детский сад.
Всего в составе Варшавского Микрорайона будет 21 дом. Здесь предусмотрено 2265 одно-, двух- и трех- и четырехкомнатных квартир площадью от 35 до более 121 квадратных метров. Застройщик предлагает сразу несколько современных вариантов планировок, каждый покупатель сможет подобрать для себя самую подходящую.
Особенностью Варшавского Микрорайона станет общая концепция архитектуры домов. Оформленные в одном стиле секции добавят кварталу выдержанности и определенного шарма. Дополнит микрорайон облагороженный и озелененный двор с уютными сквериками и прогулочными аллеями.
В Варшавском Микрорайоне есть все, что нужно для комфортной жизни:
Расположение
- 3 минуты к парку;
- 8 минут к супермаркету «Сильпо»;
- 17 минут к супермаркету «АТБ»;
- 8 минут езды к Куреневскому рынку;
- 11 минут к станциям метро «Сырец» и «Оболонь».
Концепция
- экономкласс;
- 21 дом;
- 13-25 этажей;
- 2265 квартир;
- надежный застройщик.
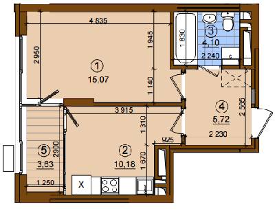
Квартиры
- однокомнатные – от 38,3 кв.м;
- двухкомнатные – от 56,91 кв.м;
- трехкомнатные – от 81,43 кв.м;
- четырехкомнатные – от 121,98 кв.м;
- высота потолков – 2,7 м.
Сервис
- закрытая территория;
- гостевой и наземный паркинги;
- детские и спортивные площадки;
- собственный торговый центр;
- благоустройство придомовой территории.
С этим ЖК читают
А что вы думаете об этом комплексе?
- Новостройки Украины
- Киев
- Подольский район
- Виноградарь
- ЖК Варшавский Микрорайон
